· La reforma integral convertirá el edificio en un punto de encuentro moderno y amable para la población joven de Manises.
Manises, 10 de noviembre de 2025.- El Ayuntamiento de Manises ha presentado el proyecto de reforma y rehabilitación del antiguo edificio Sensey, situado en la Plaza Vicente Barberá, con el objetivo de convertirlo en un espacio moderno, accesible y sostenible dedicado a la juventud y destinado a actividades culturales, sociales y formativas.
Según el concejal de Urbanismo del Ayuntamiento de Manises, Guillermo Martínez: “Transformamos un edificio en ruinas en un nuevo centro juvenil que dará un impulso al compromiso que firmamos con la juventud de Manises después de la aprobación del Plan Joven la última legislatura. Dispondrá de dos grandes salas polivalentes y un patio interior para realizar actividades”.
Por su parte la concejala de Juventud del Ayuntamiento de Manises, Clara Arnal, ha valorado la iniciativa como “un paso muy importante para ofrecer a los jóvenes de Manises un lugar donde puedan reunirse, formarse y desarrollar sus inquietudes culturales y sociales en un entorno adaptado a sus necesidades”. “Queremos que este espacio dedicado a la juventud sea un referente de participación, creatividad y convivencia, un lugar hecho por y para los y las jóvenes de Manises”, ha añadido la concejala.
El proyecto contempla una reforma integral del inmueble, actualmente sin uso y con signos de deterioro. La actuación incluirá una redistribución completa del interior, la renovación de todas las instalaciones y la adecuación del edificio a las normativas actuales en materia de accesibilidad, eficiencia energética y seguridad.
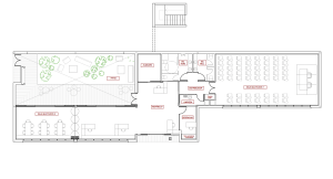
El edificio, de 244,96 m² construidos, contará con dos salas multiusos, un vestíbulo con zona de atención, despacho de coordinación, almacén, aseos adaptados y un patio interior de más de 85 m² que se habilitará como espacio al aire libre para el disfrute de los y las jóvenes del municipio.
Por otro lado, la actuación permitirá también abrir el edificio hacia la plaza, fomentando su integración con el entorno urbano y revitalizando este espacio público. El acceso principal se situará en el lado sur, con una nueva fachada más abierta y luminosa.
Finalmente, las obras están previstas que se inicien a lo largo de 2026, una vez completados los procesos administrativos y de licitación.
